パインヒル上町
【 マンション 】世田谷線上町駅最寄りの2LDK
| 最寄駅 | 所在地 | 間取り | 面積 | 築年月 | 賃料 管理費等 | 敷金 礼金 |
|---|---|---|---|---|---|---|
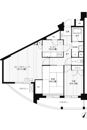
世田谷線上町 徒歩 7分 | 東京都世田谷区世田谷2-23-4 | 2 LDK | 65.97㎡ | 1999年06月 | 193,000
円
7000円 | 1ヵ月 1ヵ月 |
バス便豊富な世田谷通り沿いの物件です。ファミリータイプのお部屋が少ない地域です。お子様のいる方にも新婚さんにもオススメのエリアです。
物件写真・間取り
物件概要
| 物件名 | パインヒル上町 |
|---|
| 交通機関 | 世田谷線上町 徒歩 7分 田園都市線桜新町 徒歩 15分 |
|---|
| 建物構造 | RC |
|---|
| 所在階 / 階数 | 6階建て5階部分 |
|---|
| 主要採光面 | 南東側 |
|---|
| 駐車場 | 無し |
|---|
| 住宅保険 | 要加入 |
|---|
| 保険料 | 23000 |
|---|
| 契約期間 | 2年 |
|---|
| 引渡 | 2025年12月中旬予定 |
|---|
| 現況 | 居住中 |
|---|
| 設備・条件 | 追い炊き、フローリング、エアコン、独立洗面台、ガスコンロ設置済み、エレベーター、 |
|---|
| 取引態様 | 媒介 |
|---|
| 情報登録日 | 2025年10月31日 |
|---|
| 情報更新日 | 2025年10月31日 |
|---|

















