Rent

岡本2丁目戸建て

【 一戸建て 】ペット可・事務所利用可の一戸建て

最寄駅所在地間取り面積築年月賃料
管理費等
敷金
礼金

田園都市線二子玉川駅

徒歩 18分
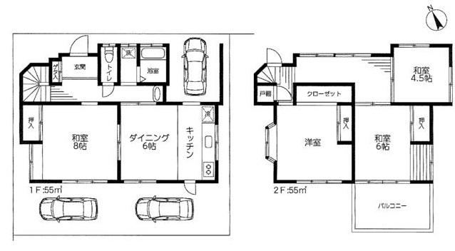
世田谷区岡本2丁目 3-16 4 DK 110㎡1962年09月280,000 円
0円
2ヵ月
2ヵ月

ペットは頭数・犬種(大型犬)もご相談可の一戸建て住宅です。駐車場スペースは3台分ございます。(前面道路が広くないので車種によります)事務所利用も可能な一戸建て住宅となります。

物件写真・間取り

バストイレ別、独立洗面台、追い炊き、室内洗濯機置き場、エアコン、バルコニー、都市ガス

物件概要

物件名

岡本2丁目戸建て

交通機関

田園都市線二子玉川駅 徒歩 18分

建物構造

木造

所在階 / 階数

2階建て1階2階部分

主要採光面 南側
駐車場

駐車場料金

3台分込み

住宅保険

要加入

保険料

20000

契約期間

2年

引渡

2025年12月上旬予定

現況

居住中

備考

事務所利用可・ペット飼育時敷金積み増し

取引態様

媒介

情報登録日2025年11月13日
情報更新日2025年11月13日

物件地図人型アイコンを地図上にドラッグするとストリートビューで表示されます。

岡本2丁目戸建て

世田谷区岡本2丁目 3-16

地図を戻す

資料請求・お問い合わせ

物件名岡本2丁目戸建て
お問い合わせ内容
お名前
電話番号
メールアドレス
確認のため同じアドレスをご入力ください。
備考欄ご希望の連絡方法、見学希望日、希望条件、質問などがございましたら、ご記入ください
LIFULL HOME'S(ライフルホームズ)優良店認定
About Us

株式会社HOLY

東京都世田谷区玉川4-5-4
レジダンスエリット101

TEL 03-6447-9544

FAX 03-6447-9545

定休日:水曜日
営業時間:10:00~18:00

宅建免許番号:東京都知事(2)第104611号

一人で始めた不動産屋さんです。一人では難しいことも正直あるとは思いますが逆を返せば一人でなんでもできると言うことになると思います。お部屋探しのお客様やお部屋を貸したい大家様との橋渡し役として、気軽にご相談いただける会社を目指しております。昨今ネットは当然ですが不動産業界もAI化が進んでおります。もちろん、それらを否定するつもりもございません。ですが人と人の繋がりがあってその先に物件等があると思うと寂しい気持ちにはなります。
古い考えかもしれませんが一期一会をモットーに人との繋がりを一番にしていきたいと思います。